Ricerca Immobili

CASOLARE UNICO CON RISTORANTE, TERRENO, PISCINA E VISTA PANORAMICA! - RIF: F6234

  • Via Cavicciano, 50
  • Zona: Marazzano
  • Camere: 3
  • Bagni: 3
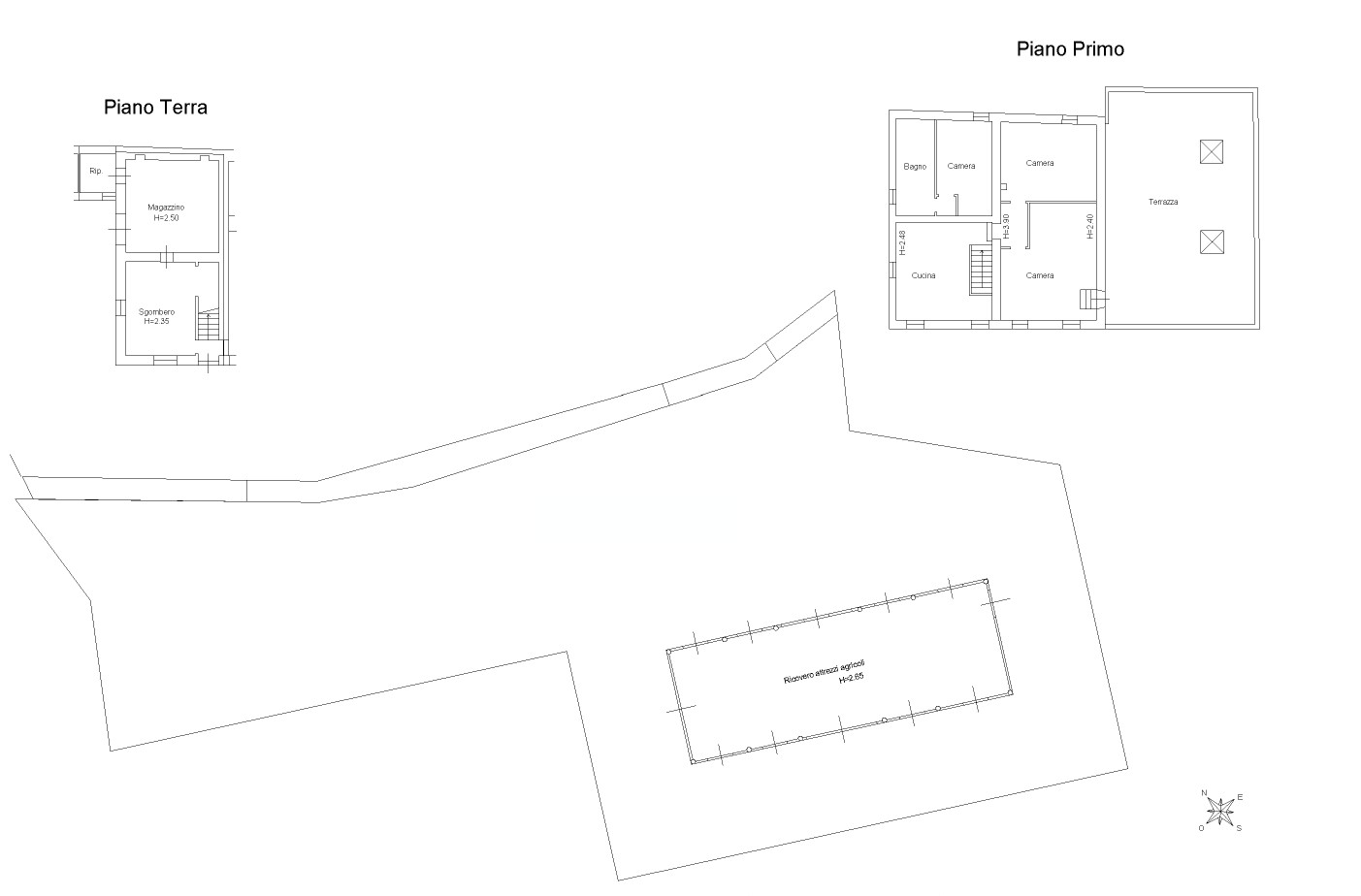
  • Mq: 2268
  • C.E.: In fase di richiesta
  • IPE: - kWh/m²anno

GEMMANO IN ESCLUSIVA – Precisamente in Via Cavicciano, proponiamo in esclusiva di vendita questa proprietà unica nel suo genere, un investimento intelligente che unisce lusso, natura e potenziale commerciale a un prezzo davvero speciale: 520.000 euro per l'intero complesso (ristorante, casa padronale, piscina, scuderie e parco) più 15.000 euro per i 15.546 mq di terreno agricolo.

Il cuore pulsante di questa tenuta è il ristorante di 300 mq, un locale già affermato che mescola design vintage e tocchi di altri tempi, perfetto per chi sogna di gestire un’attività. Con spazi ampi e ben distribuiti, può essere trasformato in una residenza privata d’eccezione o mantenuto come attività, garantendo da subito un ritorno economico.

Adiacente al ristorante, la casa indipendente (118 mq) si sviluppa su due livelli, con tre camere da letto matrimoniali e un terrazzo panoramico di 98 mq che regala tramonti indimenticabili sulle colline. Gli interni, da ristrutturare con gusto, sono una tela bianca pronta per essere personalizzata in stile moderno, rustico o classico, a seconda dei tuoi desideri.

Il parco privato di 2000 mq è un’esplosione di colori e profumi, con rose lussureggianti, ulivi secolari e un torrente cristallino che scorre dolcemente ai margini della proprietà, aggiungendo magia e relax. La piscina al coperto invita a giornate di pieno benessere, mentre le scuderie con sei box offrono spazio per cavalli, trasformando la tenuta nel paradiso degli amanti dell’equitazione.

15.546 mq di terreno agricolo (al prezzo straordinario di 15.000 euro) moltiplicano le possibilità: vigneto, oliveto, agriturismo o semplice riserva naturale per chi cerca privacy e tranquillità. Con 200 ulivi già produttivi, il terreno è pronto per generare reddito o diventare il polmone verde della tua nuova vita.

Un torrente cristallino serpeggia nelle vicinanze, regalando una colonna sonora naturale e un’atmosfera magica. I 

Non è solo una proprietà, è un’occasione rara.
Chi cerca charme, spazio e potenziale di guadagno difficilmente troverà un’offerta più vantaggiosa.

CONTATTACI PER AVERE MAGGIORI INFORMAZIONI E FISSARE UN APPUNTAMENTO DI VISITA!

Richiesta Euro 535.000,00 - Rif. F6234-0

Le presenti informazioni non costituiscono elemento contrattuale.

€ 535.000

Caratteristiche Interni

  • Bagno
  • Camera doppia
  • Camera matrimoniale
  • Camera singola
  • Cantina
  • Cucina
  • Mansarda
  • Ripostiglio
  • Tavernetta

Caratteristiche Esterni

  • Balconi
  • Garage
  • Terrazzo
  • Giardino: Privato

Posto Auto

  • Privato
  • Scoperto

Altre Caratteristiche

  • Camino

Posizione

Richiedi Informazioni - RIF: F6234