Ricerca Immobili

Casa cielo-terra

Tre o Più Camere a Pesaro

RIF: PF0048

  • Via Andrea Costa, 87/89
  • Camere: 5
  • Bagni: 2
  • Mq: 450
  • C.E.: In fase di richiesta
  • IPE: - kWh/m²anno

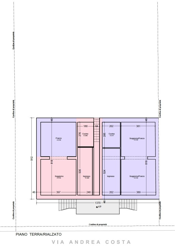
PESARO IN ESCLUSIVA- PANTANO BASSA: In posizione residenziale servita, ed a breve distanza da Piazza Lazzarini (Teatro Rossini), precisamente in Via Andrea Costa, n. 87-89, proponiamo in esclusiva casa indipendente cielo-terra di ampia metratura, ideale per chi cerca un immobile da trasformare e valorizzare.

La proprietà è disposta su tre livelli, e nello specifico al piano seminterrato si sviluppa il laboratorio con i suoi ampi locali accessori per un totale di 262 mq, mentre ai piani superiori, rispettivamente di 125 mq l’uno, troviamo l’abitazione principale, per una superficie complessiva importante e versatile, pari a circa 450mq commerciali.

Completa la proprietà una pratica corte pavimentata di 140 Mq che circonda la casa su più lati, oltre ad un’ulteriore area esclusiva di fronte all’abitazione, dove poter posteggiare comodamente due auto.

L’immobile si presta a un intervento di ristrutturazione con elevato potenziale di valorizzazione, ideale per la realizzazione di 3-5 unità abitative di diverse dimensioni e con possibilità di ricavare fino a 6 posti auto oppure 3 garage (valore aggiunto in una zona così centrale).

Soluzione adatta a operazioni immobiliari o a nuclei familiari multipli (2-3 famiglie).

CONTATTACI PER AVERE MAGGIORI INFORMAZIONI E FISSARE UN APPUNTAMENTO DI VISITA!

Richiesta Euro 420.000,00 - Rif. PF0048

€ 420.000

Mono / Una Camera a Gemmano

RIF: F6247

  • Via Delle Fonti, 86
  • Camere: 1
  • Bagni: 1
  • Mq: 68
  • C.E.: In fase di richiesta
  • IPE: - kWh/m²anno

GEMMANO IN ESCLUSIVA - Immersa nel verde e con una splendida vista panoramica sulle colline adiacenti, precisamente in Via Delle Fonti, 86, proponiamo in esclusiva di vendita CASA CIELO-TERRA abbinata su un lato, ristrutturata esternamente nel 2024, oltre a terreni di proprietà.

L'immobile è disposto su due livelli, e nello specifico al piano terra troviamo la cantina e tavernetta, mentre al piano superiore, tramite scala esterna, accediamo all'abitazione composta da ingresso, soggiorno con cucina abitabile separata, una camera matrimoniale e un bagno.

La proprietà è completa di giardino privato con vista panoramica, e posto auto scoperto.

L'immobile viene ceduto insieme a terreni di proprietà, nello specifico con destinazione seminativo, seminativo arborato, pascolo e bosco ceduo, per un totale di 26.700 Mq circa, in parte adiacenti alla casa, in parte più dislocati.

Richiesta Euro 39.000,00 - Rif. F6247

Le presenti informazioni non costituiscono elemento contrattuale.

 

Tre o Più Camere a Mondaino

RIF: F6244

  • Via Roma, 25
  • Camere: 3
  • Bagni: 2
  • Mq: 280
  • C.E.: In fase di richiesta
  • IPE: - kWh/m²anno

MONDAINO IN ESCLUSIVA:Nella splendida cittadina di Mondaino, antico castello medioevale della Signoria dei Malatesta,  in pieno centro storico, precisamente in Via Roma 25/27, proponiamo in esclusiva di vendita  CASA INDIPENDENTE abbinata libera su tre lati.

L'immobile imponente e maestoso domina la piazza su cui si affaccia. Esso è costituito da tre piani fuori terra più un piano sotterraneo meraviglioso che ci riporta alle origini del paese.  

Nello specifico la proprietà è composta al piano terra, con ingresso indipendente, da negozio di 72 Mq  versatile nel suo utilizzo. Possibilità di creare una unità abitativa chiedendo il cambio di destinazione d'uso. Al piano primo e secondo, con un totale di mq  104, troviamo l'abitazione. Spazi ampi e molto luminosi, Meravigliosa sala soggiorno servita da balcone di circa 50 mq separata dalla cucina abitabile anch'essa servita da balcone. Un' ampia camera da letto matrimoniale con balcone piu due camere da letto doppie di cui una sempre con balcone,  compongono il secondo piano insieme al bagno completamente ristrutturato di recente.

Al terzo piano, troviamo un ripostiglio utilissimo per creare un ambiente riservato che da accesso  al lastrico solare di 55 Mq. Da qui una vista panoramica impareggiabile sulla piccola cittadina e sul territorio circostante. Le principali vette degli appennini romagnolo-marchigiani si stagliano davanti ai vostri occhi.L'immobile, si presenta in buone condizioni. Abitabile da subito. Ideale per due nuclei familiari o per chi cerca spazi importanti per realizzare i propri sogni. Ricordando che Mondaino è paese storico, molto frequentato da turisti internazionali, Il nostro immobile si presta,  per disposizione e spazi,  anche ad essere trasformato in struttura turistico ricettiva. Gli ampi spazi al piano terra che affacciano sulla piazza sono accoglienti e la possibilità di parcheggiare davanti l'immobile in pieno centro storico, lo fa preferire a tutti gli altri immobili presenti. 

Riepilogando non perdere l'occasione di diventare proprietario di un immobile abitabile da subito, indipendente, senza spese condominiali,  con spazi generosi, vista panoramica impareggiabile, senza problemi di parcheggio e a un prezzo veramente interessante. Ti aspettiamo per prenotare la tua visita.

Richiesta Euro 219.000,00 - Rif. F6244

Le presenti informazioni non costituiscono elemento contrattuale.

 

€ 219.000

Tre o Più Camere a Pesaro

RIF: PC0044

  • Strada Tresole, 1B
  • Camere: 3
  • Bagni: 2
  • Mq: 123
  • C.E.: In fase di richiesta
  • IPE: - kWh/m²anno

PESARO LOC. VALLE DI TRESOLE - IN ESCLUSIVA: Sulle primissime colline di Pesaro, non distante dalla città di Fano e con una bellissima VISTA MARE, precisamente in Strada Tresole 1/B, proponiamo in esclusiva di vendita casa cielo-terra abbinata su un lato, di circa 25 anni di età in ottime condizioni sia interne che esterne.
Disposta su due livelli, per un totale di circa 120 mq, l'immobile si compone al piano terreno di cucina abitabile e soggiorno dotato di camino, oltre ad un bagnoo con finestra; salendo al primo ed ultimo piano, troviamo 3 camere da letto, balcone, e secondo bagno con finestra.
A completare la proprietà, abbiamo una corte condivisa, oltre a circa 2.700 mq di terreno agricolo, anch'essa condivisa e da frazionare, ottimamente esposta.
Questo è un immobile per chi, senza allontanarsi dalla città, desidera un contesto tranquillo, l'indipendenza ed uno splendido panorama senza la necessità di grossa manutenzione del verde.

Richiesta Euro 300.000,00 - Rif. PC0044

Le presenti informazioni non costituiscono elemento contrattuale.

€ 300.000

Tre o Più Camere a Pesaro

RIF: PF0045

  • Via Andrea Costa, 170/172
  • Camere: 3
  • Bagni: 3
  • Mq: 143
  • C.E.: In fase di richiesta
  • IPE: - kWh/m²anno

PESARO IN ESCLUSIVA - LOC. PANTANO: In posizione semi-centrale e servita, proponiamo in esclusiva di vendita casa cielo-terra abbinata con ingresso indipendente, e completa di corte pavimentata, box auto e cantina fuori terra;

L'immobile è costituito dall'abitazione principale che si sviluppa su due livelli, e da un negozio trasformabile in civile abitazione.

Nello specifico l'abitazione al piano terra è dotata di soggiorno con cucina e bagno. Al primo piano sono disposte le 2 camere da letto, una piccola veranda, il secondo bagno, un ripostiglio ed altre due stanze comunicanti dove è possibile realizzare altre camere.

A completare, corte privata di 80 Mq sul retro dell'immobile, che consente di posteggiare comodamente auto e scooter all'interno della proprietà, ed è completa box auto di 13 Mq, cantina e bagno, che offre un accesso secondario all'immobile oltre a quello sulla Via principale.

Questo immobile offre la possibilità di frazionamento in piccoli appartamenti, rendendolo un acquisto ideale sia per chi cerca un potenziale investimento, sia per un nucleo famigliare che vuole rimanere nella stessa abitazione senza rinunciare ai propri spazi.

Richiesta Euro 180.000,00 - Rif. PF0045

Le presenti informazioni non costituiscono elemento contrattuale.

€ 180.000

Tre o Più Camere a Monte Grimano Terme

RIF: F6245

  • Via Ornaccia, 38
  • Camere: 4
  • Bagni: 2
  • Mq: 218
  • C.E.: In fase di richiesta
  • IPE: - kWh/m²anno

MONTE GRIMANO TERME (PU) IN ESCLUSIVA – Loc. San Donato - Immersa nel verde e con vista panoramica sulle colline adiacenti, ad 1 km da Mercatino Conca, precisamente in Via Ornaccia n. 38, proponiamo in esclusiva di vendita CASA CIELO-TERRA abbinata su un lato, con ingresso indipendente, garage e terreno di 283 mq.

L'abitazione si sviluppa su due livelli, e nello specifico al piano primo si sviluppa la zona giorno composta da ingresso, accogliente soggiorno con camino, ampia cucina abitabile, camera matrimoniale e bagno. Al piano superiore, raggiungibile tramite scala interna, si trovano altre 3 camere da letto matrimoniali, ed il secondo bagno finestrato.

A completare la proprietà, al piano terra si trova la cantina con garage collegato per un totale di 85 Mq, oltre il terreno situato comodamente di fronte all'abitazione ed arricchito dalla presenza di splendidi ulivi, con possibilità edificatorie oppure di sfruttarlo come giardino, da cui godere di una meravigliosa vista sulle colline.

CONTATTACI PER AVERE MAGGIORI INFORMAZIONI E FISSARE UN APPUNTAMENTO DI VISITA!

Richiesta Euro 110.000,00 - Rif. F6245

Le presenti informazioni non costituiscono elemento contrattuale.

 

€ 110.000