Ricerca Immobili

Tre o Più Camere a Monte Grimano Terme - RIF: F6245

  • Via Ornaccia, 38
  • Camere: 4
  • Bagni: 2
  • Mq: 218
  • C.E.: In fase di richiesta
  • IPE: - kWh/m²anno

MONTE GRIMANO TERME (PU) IN ESCLUSIVA – Loc. San Donato - Immersa nel verde e con vista panoramica sulle colline adiacenti, ad 1 km da Mercatino Conca, precisamente in Via Ornaccia n. 38, proponiamo in esclusiva di vendita CASA CIELO-TERRA abbinata su un lato, con ingresso indipendente, garage e terreno di 283 mq.

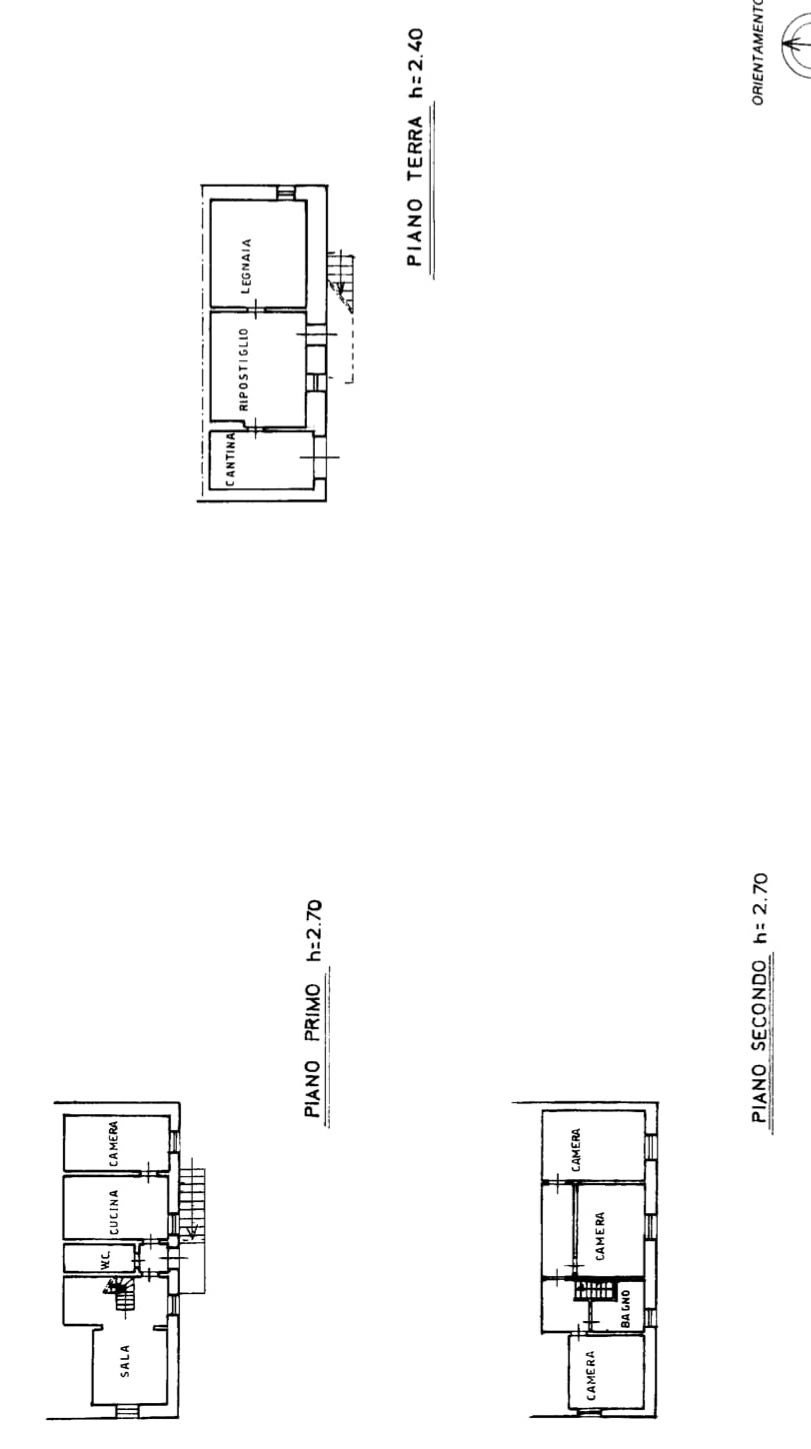
L'abitazione si sviluppa su due livelli, e nello specifico al piano primo si sviluppa la zona giorno composta da ingresso, accogliente soggiorno con camino, ampia cucina abitabile, camera matrimoniale e bagno. Al piano superiore, raggiungibile tramite scala interna, si trovano altre 3 camere da letto matrimoniali, ed il secondo bagno finestrato.

A completare la proprietà, al piano terra si trova la cantina con garage collegato per un totale di 85 Mq, oltre il terreno situato comodamente di fronte all'abitazione ed arricchito dalla presenza di splendidi ulivi, con possibilità edificatorie oppure di sfruttarlo come giardino, da cui godere di una meravigliosa vista sulle colline.

CONTATTACI PER AVERE MAGGIORI INFORMAZIONI E FISSARE UN APPUNTAMENTO DI VISITA!

Richiesta Euro 110.000,00 - Rif. F6245

Le presenti informazioni non costituiscono elemento contrattuale.

 

€ 110.000

Caratteristiche Interni

  • Bagno
  • Camera doppia
  • Camera matrimoniale
  • Cantina
  • Cucina
  • Secondo bagno
  • Soggiorno
  • Sottotetto

Caratteristiche Esterni

  • Garage
  • Giardino: Privato

Posto Auto

  • Scoperto

Altre Caratteristiche

  • Arredato
  • Camino

Posizione

Richiedi Informazioni - RIF: F6245