Ricerca Immobili

Palazzina a Gabicce Mare - RIF: F6249

  • Via Vittorio Veneto, 90
  • Zona: Mare
  • Camere: 3
  • Bagni: 6
  • Mq: 380
  • C.E.: In fase di richiesta
  • IPE: - kWh/m²anno

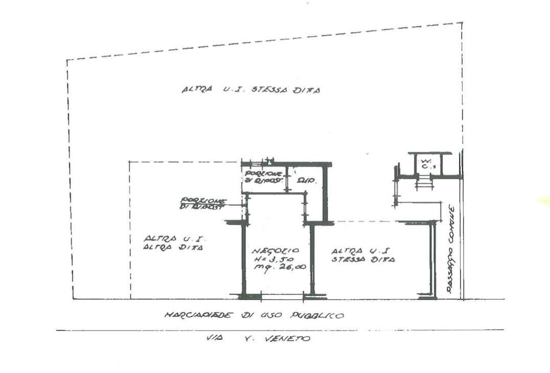
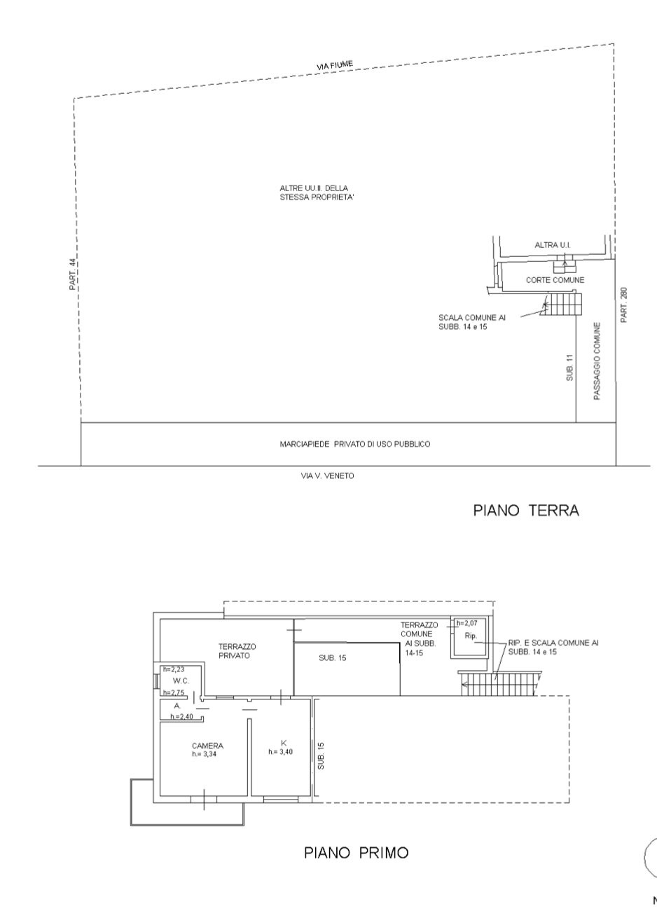
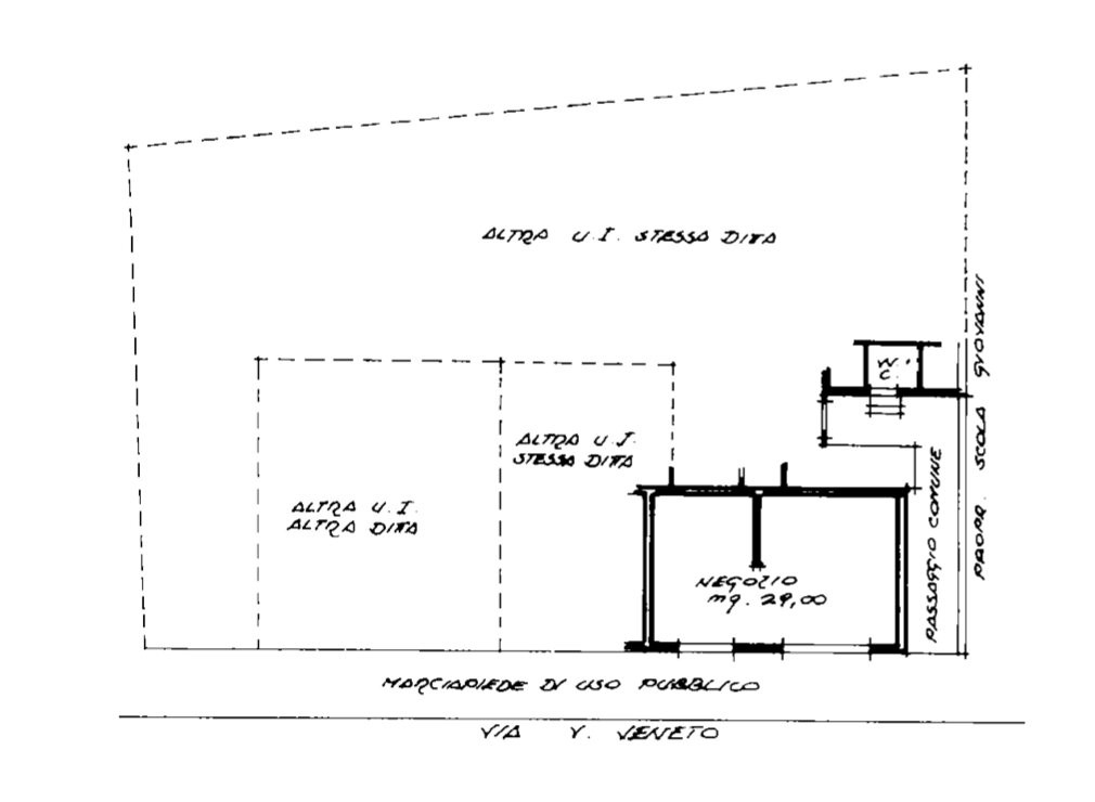
GABICCE MARE IN ESCLUSIVA - CENTRO/MARE: In pieno centro ed a pochi passi dal mare, precisamente in Via Vittorio Veneto 90, proponiamo in esclusiva di vendita PALAZZINA IN BUONISSIMO STATO, libera su quattro lati.
L'immobile è così composto:
- n.4 negozi al piano terra, rispettivamente di 125 Mq, 55 Mq, 40 Mq e 37 Mq.
- n.2 appartamenti, nello specifico un bilocale ed un trilocale, completi entrambi di balcone e terrazzo.

A completare la proprietà, al piano terra si ha un piacevole spazio scoperto esclusivo di 89 Mq.

CONTATTA L'AGENZIA PER MAGGIORNI INFORMAZIONI!

Richiesta Euro 695.000,00 - Rif. F6249

Le presenti informazioni non costituiscono elemento contrattuale
 

€ 695.000

Caratteristiche Interni

  • Angolo Cottura
  • Bagno
  • Camera doppia
  • Camera matrimoniale
  • Cucina

Caratteristiche Esterni

  • Balconi
  • Terrazzo
  • Giardino: Privato

Posizione

Richiedi Informazioni - RIF: F6249