Ricerca Immobili

Due Camere a Gabicce Mare - RIF: G7103-05

  • Via Enrico de Nicola
  • Zona: Case Badioli
  • Camere: 2
  • Bagni: 2
  • Mq: 126
  • C.E.: Non richiesta
  • IPE: - kWh/m²anno

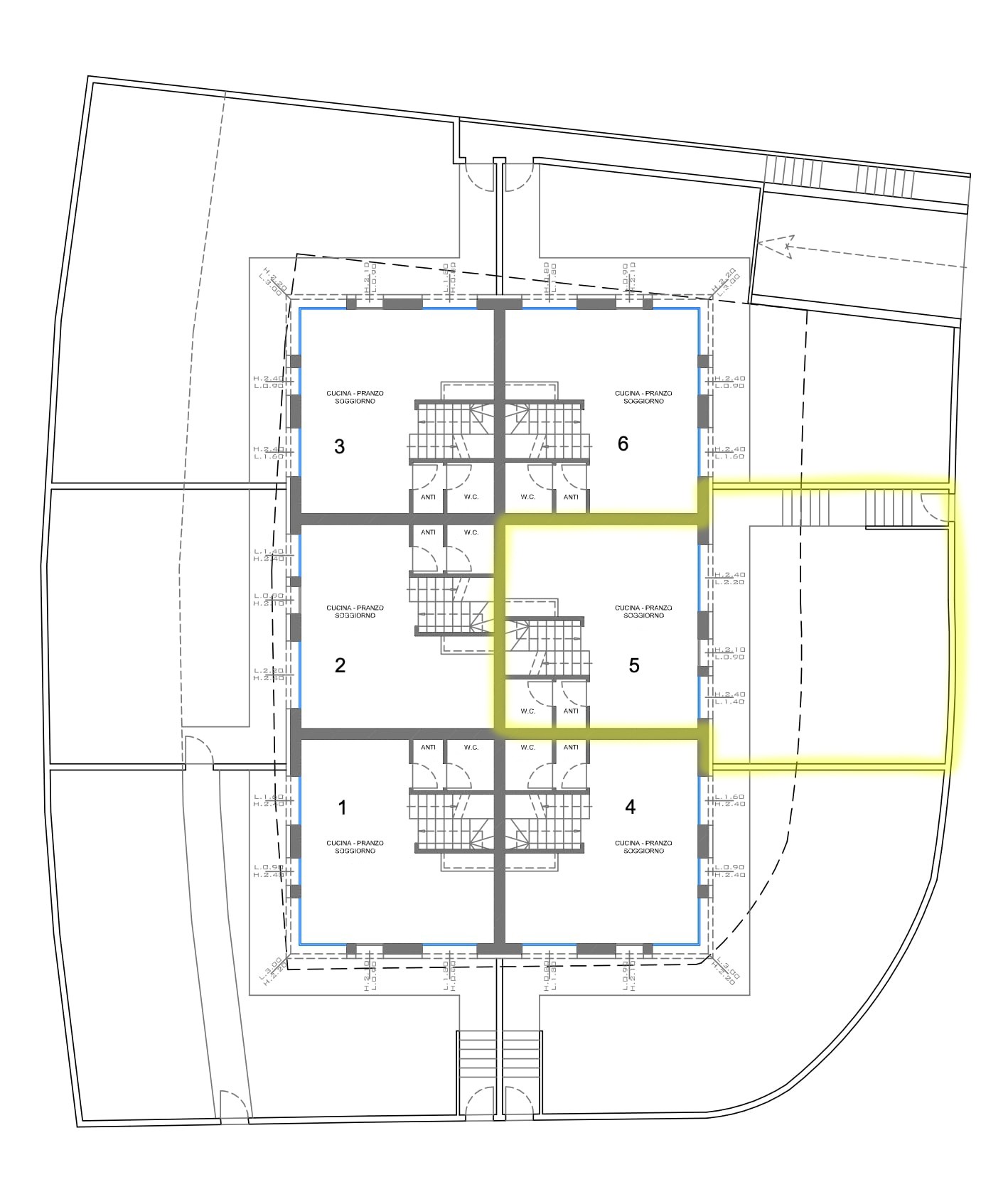
GABICCE MARE IN ESCLUSIVA - LOC. CASE BADIOLI: In zona residenziale e comoda ai principali servizi, precisamente in Via Enrico De Nicola, proponiamo in esclusiva di vendita VILLETTA A SCHIERA DI FUTURA REALIZZAZIONE, completa di tutti i comfort.
L'abitazione, dotata di ingresso indipendente, è disposta internamente su più livelli, e nello specifico:

Piano terra dedicato interamente alla zona giorno, con antibagno e bagno, e servito da piacevole giardino ad uso esclusivo di 68 Mq.

Al primo piano troviamo le due camere da letto servite da balcone comunicante di 12 Mq, ed il bagno finestrato.
A completare, la villetta dispone di ampio garage di 37 Mq sito al piano seminterrato, comodamente accessibile sia dall'esterno che direttamente collegato internamente alla casa.

L'edificio, comprendente un totale di n° 6 villette a schiera, sarà coibentato termicamente e completo di pannelli fotovoltaici; inoltre le abitazioni saranno dotate di impianti autonomi, riscaldamento a pavimento con caldaia elettrica a pompa di calore, infissi in PVC e portone d'ingresso blindato.

Capitolato descrittivo completo disponibile in agenzia.

CONTATTACI PER AVERE MAGGIORI INFORMAZIONI E FISSARE UN APPUNTAMENTO

Richiesta Euro 319.000,00 - Rif. G7103-05

Le presenti informazioni non costituiscono elemento contrattuale

€ 319.000

Caratteristiche Interni

  • Angolo Cottura
  • Bagno
  • Camera matrimoniale
  • Camera singola
  • Secondo bagno
  • Soggiorno
  • Studio

Caratteristiche Esterni

  • Balconi
  • Garage
  • Giardino: Privato

Altre Caratteristiche

  • Aria condizionata

Posizione

Richiedi Informazioni - RIF: G7103-05