Ricerca Immobili

Tre o Più Camere a Pesaro - RIF: PD0035

  • Via Carniccia, 5
  • Zona: Mare/Porto
  • Camere: 3
  • Bagni: 3
  • Mq: 146
  • C.E.: In fase di richiesta
  • IPE: - kWh/m²anno

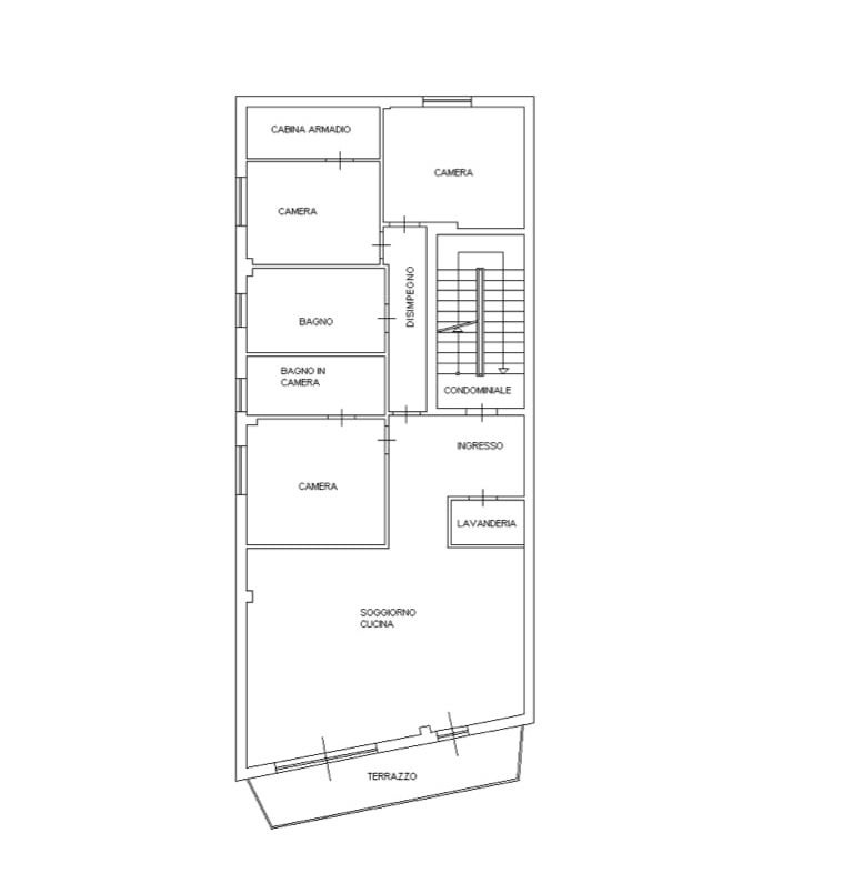
PESARO IN ESCLUSIVA - ZONA CENTRO/PORTO: In posizione strategica adiacente al porto, con la comodità del centro e della spiaggia raggiungibile a piedi, precisamenre in Via Carniccia, 5, proponiamo in esclusiva di vendita splendido appartamento COMPLETAMENTE RISTRUTTURATO, all'interno di piccolo contesto SENZA SPESE CONDOMINIALI.

L'appartamento, sito al primo piano rialzato senza ascensore, è composto internamente da ingresso, luminoso soggiorno dotato di ampia cucina a vista con isola e terrazzo. Proseguendo troviamo il disimpegno con stanza dedicata alla lavanderia, uno spazioso bagno finestrato, tre camere da letto matrimoniali di cui una dotata di bagno finestrato, e una dotata di comoda cabina armadio.

L'appartamento è dotato di infissi con triplo vetro e riscaldamento a pavimento, ed è stato completamente ristrutturato internamente ed esternamente nel 2025.

A completare la proprietà, cantina al piano rialzato.

Richiesta Euro 465.000,00 - Rif. PD0035

Le presenti informazioni non costituiscono elemento contrattuale.

€ 465.000

Caratteristiche Interni

  • Angolo Cottura
  • Bagno
  • Camera doppia
  • Camera matrimoniale
  • Cantina
  • Lavanderia
  • Secondo bagno
  • Soggiorno

Caratteristiche Esterni

  • Balconi

Altre Caratteristiche

  • Arredato

Posizione

Richiedi Informazioni - RIF: PD0035