Ricerca Immobili

Negozio a Pesaro - RIF: PI0030

  • Strada Statale Adriatica, 345
  • Zona: Tombaccia
  • Bagni: 1
  • Mq: 354
  • C.E.: In fase di richiesta
  • IPE: - kWh/m²anno

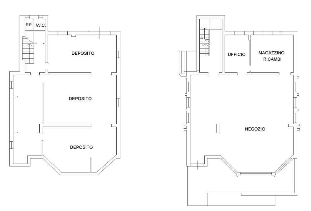
PESARO IN ESCLUSIVA - ZONA TOMBACCIA: In zona di forte passaggio, precisamente in Strada Adriatica, 345 proponiamo in esclusiva di vendita ampio negozio al piano terra oltre ad ampio deposito al piano interrato.

L'immobile, di circa 177 Mq A PIANO, è internamente composto da un ampio open space, ufficio e servizi igienici per il personale, oltre ad uno scoperto esclusivo di 47 Mq perfetto come spazio espositivo per la vendita al pubblico.
Attualmente il negozio è adibito all'attività di concessionario moto.

Vengono venduti i muri non la licenza.

PER MAGGIORI INFORMAZIONI CONTATTARE L'AGENZIA!

Richiesta Euro 600.000 - Rif. PI0030
Le presenti informazioni non costituiscono elemento contrattuale.

€ 600.000

Posizione

Richiedi Informazioni - RIF: PI0030